Bine ați venit la viitorul locuințelor de lux din Craiova!
Pe un teren generos de 2600 de metri pătrați, situat strategic în inima orașului, construim două blocuri de apartamente premium, menite să redefinească standardele locuirii urbane. Aceste clădiri nu sunt doar simple construcții, ci un angajament către excelență și confort suprem pentru viitorii noștri rezidenți.
Caracteristici Principale
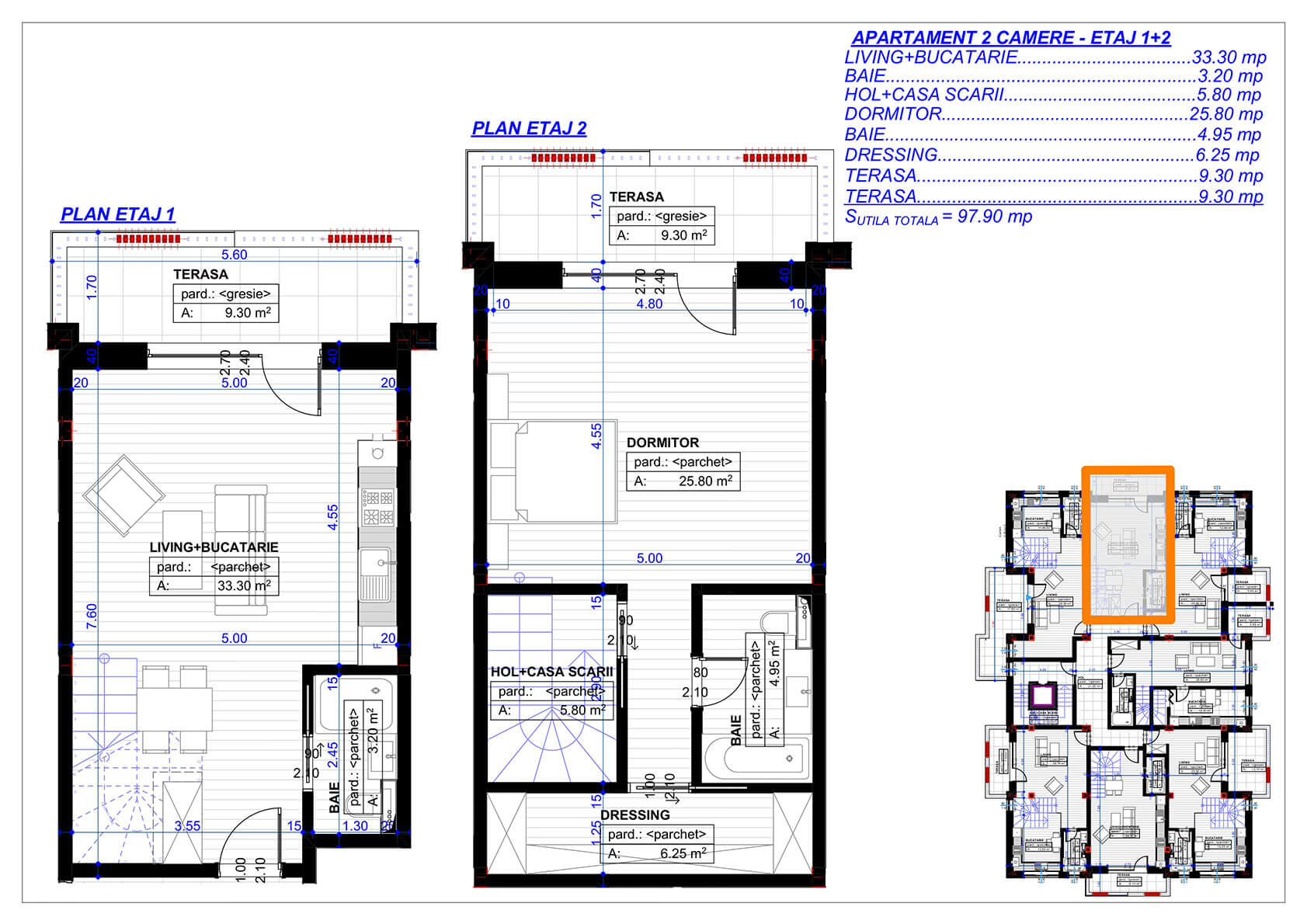
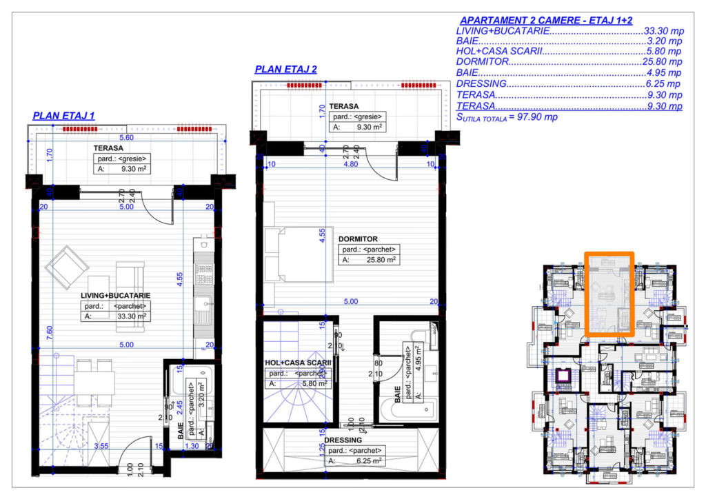
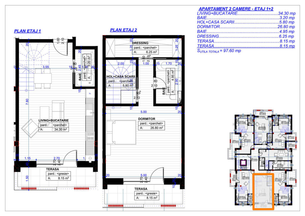
Apartamente tip duplex ( pe 2 etaje)
Materiale de Construcție
– *Cărămidă*: Utilizată pentru durabilitatea sa și proprietățile excelente de izolare termică și fonică.
– *Izolație din Vată Bazaltică*: Oferă protecție termică superioară și rezistență la foc.
– *Gresie și Faianță din Italia*: Finisaje de lux cu plăci mari de 160 cm pe 320 cm, pentru un design modern și sofisticat.
Facilități Premium
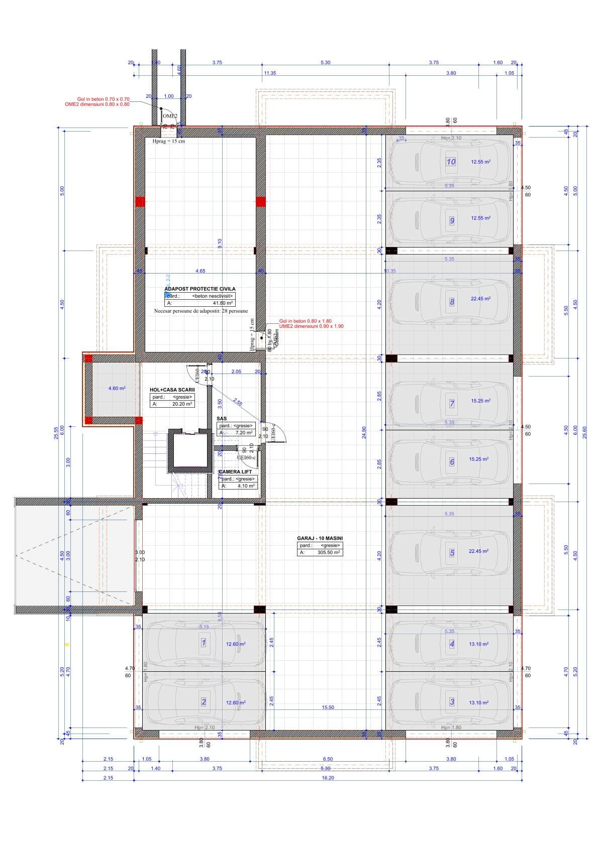
– *Parcare Subterană*: Cu o suprafață de 1100 mp, parcarea subterană oferă siguranță și confort pentru toate vehiculele rezidenților.
– *Sală de Fitness*: Complet echipată, pentru un stil de viață activ și sănătos.
– *Încălzire în Pardoseală*: Asigură un confort termic optim în fiecare apartament, chiar și în cele mai reci zile.
– *Băi Mobilate*: Apartamentele sunt livrate cu băile complet mobilate, utilizând echipamente și mobilier de cea mai înaltă calitate.
Localizare de Top
Situate în centrul Craiovei, aceste blocuri de apartamente oferă acces facil la toate facilitățile esențiale: centre comerciale, restaurante, instituții de învățământ, spitale și multe altele. Locatarii noștri vor beneficia de toate avantajele unei vieți urbane moderne, având tot ce este important la câțiva pași distanță.
Design și Construcție
Fiecare detaliu al acestui proiect a fost gândit pentru a satisface și cele mai exigente gusturi. De la designul modern al apartamentelor până la finisajele de înaltă calitate, totul este realizat cu maximă atenție pentru a asigura confortul și satisfacția rezidenților noștri.

















